MI isoleerimata ja isoleeritud akumulatsioonipaagid
OVAALSED JA SILINDRILISED

Lisainfot leiad: MI akumulatsioonipaagid

Võimalus tellida lisavarustusena sisseehitatud soojusvahetid tarbeveele või päikeseküttele.
TS – sooja tarbeveespiraal (soojusvaheti) 10 m (1,36 m², 22 kW, gofreeritud toru roostevabast terasest EN 1.4404).
PS – päikeseküttespiraal (soojusvaheti) 20 m (2,7 m², 44 kW, gofreeritud toru roostevabast terasest EN 1.4404).
Võimalik tellida pikem spiraal, iga lisa 5 m.
Lisainfot leiad: MI akumulatsioonipaagid

Spiraalile on võimalik tellida ka äärik,
Ühele äärikule saab paigaldada kuni 10 m spiraali.

Isolatsiooni paksus on:
– silindrilistel paakidel 50 mm (100 – 400 l paagid) ja 100 mm (500 – 3000 l paagid);
– ovaalsetel paakidel 100 mm.
Materjal: tehniline vatiin (pehme polümeerikiud), kaetud 1 mm paksuse plastikkestaga.
Paakide kõrgust ja muhvide asukohti saab soovi korral muuta, samuti paigaldada lisamuhve.
Paakidele on võimalik tellida kihieraldusplaat.
Paagid on krunditud, kruntvärvile tehtuid reklamatsioone (tarneahelas tekkinud kriimud, metalli aluspind näha, vms.) ei võeta käsitusele, kuna paakidel puudub viimistlusvärv.
SILINDRILISED MUDELID





Lisainfot leiad: MI akumulatsioonipaagid
.............................................................................................................................................................................................................................
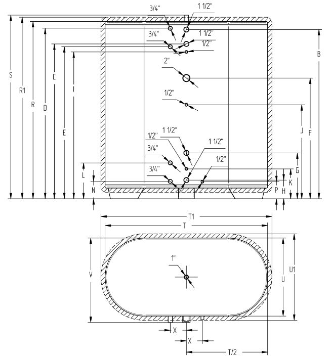
OVAALSED MUDELID



Lisainfot leiad: MI akumulatsioonipaagid









Lisainfot leiad: MI akumulatsioonipaagid
